В Железногорске изготовили станцию запаса воды для крупного туристического объекта
«Завод Лидер» и компания РМЗ (Региональный многопрофильный завод) реализовали комплексное решение для объекта вспомогательной инфраструктуры – временное сборно-разборное здание столовой на 96 посадочных мест. Заказчик – Учебно-спортивная база «Саланга»
Вахтовые посёлки «Лидер» – качество благодаря постоянной обратной связи
В целях повышения качества работы завод «Лидер» регулярно принимает на площадке предприятия инспекции от представителей крупнейших компаний нефтегазовой, угольной, золотодобывающей и других отраслей и поддерживает обратную связь с клиентами.
Вахтовые посёлки: как работник ест, так он и работает
В компании «Лидер» освоили производство блок-модульных столовых на основе мобильных зданий, в различных конфигурациях, для использования в составе вахтовых посёлков.
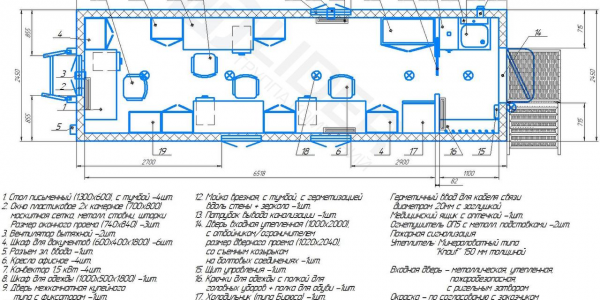
Архив из 12 тысяч схем ускоряет производство вагон-домов «Лидер»
Индивидуальные схемы для мобильных зданий, постоянно пополняющие архив технической документации «Завода Лидер», позволяют существенно ускорить разработку и производство вагон-домов.
«Восток Ойл» получит высококачественый мобильный склад
Железногорское предприятие «Завод Лидер» выполнило очередную отправку для «Восток Ойл» (Роснефть) – складские блоки. Пятьдесят единиц контейнерных модулей были изготовлены и отгружены в самый сжатый срок, под конец навигации. Компания занимаемся как созданием вахтовых городков, так и формированием складской логистики….
Промышленный дизайн – путь к успеху
Представители завода вагон-домов «Лидер» приняли участие в деловом нетворке ПРОМДИЗ 25 в Красноярске.
Обзор. Клуб молодых промышленников: главная идея – взращивание новых предприятий
В интервью Красноярскому телеканалу «Прима» коммерческий директор компании «Завод Лидер» Иван Мячев рассказал о том, как родилась идея создания регионального отделения Клуба молодых промышленников, и как эта общественная деятельность, дополнительно к льготам и преференциям, поддерживает импортозамещающее производство.
В Группе «Лидер» изготовили и отгрузили партию рефрижераторных контейнеров
Очередная партия рефрижераторных контейнеров отправилась к заказчику с завода группы «Лидер» из Железногорска. В составе комплексных вахтовых посёлков, которые компания производит вместе с модулями инженерного и производственного обеспечения, есть и мобильные рефрижераторные контейнеры.
Вагон-дома «Лидер» доказали надёжность длительной эксплуатации в сложных условиях
Представители ГК «Лидер» провели инспекцию вагон-домов, эксплуатирующихся в сложных условиях, и убедились в качестве продукции. Инспекция вахтового городка, который уже почти два года находится в активной эксплуатации, показала, что городок сохраняет высокий уровень качества, надёжность конструкций и комфорт для сотрудников на вахте.
Месторождение «Богатырь» получит вахтовые дома из Железногорска
Отгрузка вагон-домов в Новосибирскую область на антрацитовое месторождение «Богатырь» состоялась на предприятии «Завод «Лидер». С завода отправлена партия мобильных зданий для угольного разреза «Богатырь».









