«Сибирский титан» вошёл в промышленный кластер цветных и редкоземельных металлов
В Минпромторге РФ зарегистрирован промышленный кластер «Цветные и редкоземельные металлы». Кластер объединил предприятия АО «ТГОК «Ильменит», ООО «Сибирский титан», ООО «Интергласс», ООО «ЗКПД ТДСК», ООО «Энгра».
«МК-Полимер» планирует втрое повысить срок службы полимерных композитов
В компании «МК-Полимер» изучают возможность внедрить в производственную деятельность результаты исследования учёных Омского политехнического университета. Технология позволяет в три раза повысить износостойкость полимерных композитов.
НПО «Центротех» – в призёрах акселератора «Новая высота – 2025»
Две команды НПО «Центротех» – в числе призёров акселератора «Новая высота – 2025», который стал ареной для новых идей и технологических решений. Трек «Новые бизнесы» объединил проекты Топливного дивизиона.
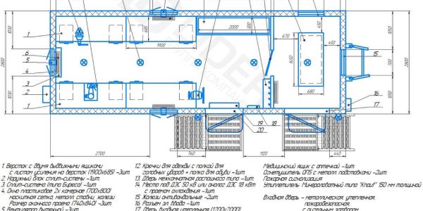
Техническая библиотека – в помощь при создании вахтовых посёлков
Технический архив группы «Лидер», железногорского производителя мобильных зданий, превысил 12 тыс. индивидуальных схем.



